AFPM100/B消防設備電源監控系統在靖西環球大酒店的應用
徐霜
安科瑞電氣股份有限公司 上海嘉定
摘要:本文簡述了消防設備電源監控系統的組成原理,分析了消防設備電源監控系統在應用中的設計依據和相關規范。最后通過安科瑞消防設備電源監控系統在靖西環球大酒店項目的實例介紹,闡述了消防設備電源監控系統功能的實現及其重要意義。
0 概述
靖西環球國際大酒店項目位于百色市靖西縣龍潭新區濕地公園西端,毗鄰金山、金泉,左連商業步行街、龍潭水庫,右連靖西環球商業中心,地理位置優越,交通便利,環境優美。該酒店是由愛國環球集團自建自營的一家集客房、餐飲、娛樂、健身、商務會所為一體的四星級國際大酒店,總建筑面積44490.75平方米,酒店高23+1層,高度為81.45米。
本次項目為靖西環球大酒店14只消防設備電源監控模塊AFPM系列,位于該項目的樓層內。本項目主要負責監控現場分布于該項目消防設備的電壓狀況,及時提醒消控室值班人員,以防止火災發生時,消防設備無法正常投入使用。
靖西環球大酒店現場有消防設備電源監控模塊14只AFPM系列安裝于樓層內,F場儀表采用總線方式接至消控中心的AFPM100/B壁掛式消防設備電源監控系統。
1 參考標準
近年來,國家為了防止火災發生時消防設備不能正常使用,相繼制訂或修改了一批相關標準規范,加強對消防設備的監控。主要有:
1.1.GB25506-2010《消防控制室通用技術要求》,在條文 5.7 消防電源監控器應符合下列要求:
a)應能顯示消防用電設備的供電電源和備用電源的工作狀態和故障報警信息。
b)應能將消防用電設備的供電電源和備用電源的工作狀態和欠壓報警信息傳輸給消防控制室圖 形顯示裝置。
1.2.GB 28184-2011 《消防設備電源監控系統》
1.3.GB 50116-2013《火災自動報警系統設計規范》
2 系統組成
靖西環球大酒店消防設備電源監控系統項目由消防設備電源監測后臺,防設備電源探測器組成。
本項目通訊總線共接入2條通訊總線,將現場的消防設備電源監控模塊直接接入壁掛式后臺,組成消防設備電源監控系統的大動脈。AFPM100/B消防設備電源監控系統采用,消防設備電源狀態監控器+電壓/電流傳感器的兩層結構組網模式。整個監控系統功能全面,安全可靠,探測準確,性價比高,系統內部采用RS485網絡通信,對外提供Modbus-RTU通信協議,以滿足其他標準系統的連接,以上所述組成一套信號穩定,精度可靠的消防設備電源監測系統。本系統組網共分為三層:
1)站控管理層
站控管理層針對電氣火災監控系統的管理人員,是人機交互的直接窗口,也是系統的最上層部分。主要由系統軟件和必要的硬件設備,如觸摸屏、UPS電源等組成。監測系統軟件對現場各類數據信息計算、分析、處理,并以圖形、數顯、聲音、指示燈等方式反應現場運情況。
監控主機:用于數據采集、處理和數據轉發。為系統內或外部提供數據接口,進行系統管理、維護和分析工作。
UPS:保證計算機監測系統的正常供電,在整個系統發生供電問題時,保證站控管理層設備的正常運行。
后臺監控設備設置在消控室中。
2)網絡通訊層
通訊介質:系統主要采用屏蔽雙絞線,以RS485接口,MODBUS通訊協議實現現場設備與上位機的實時通訊。
3)現場設備層
現場設備層是數據采集終端,主要為AFPM100系列消防設備電源監控探測器。
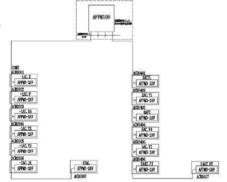
系統結構拓撲圖如下:

3 消防設備電源設備
3.1、AFPM100消防設備電源后臺:
主要技術參數 
電源
♦ 主電源:AC220V 50Hz(允許85%-110%范圍內變化)
♦ 備用電源:主電源低電壓或停電時,維持監控設備工作時間≥8h
♦ 監控器為連接的模塊(電壓/電流信號傳感器)提供DC24V電源
工作制24小時工作制
通訊方式
Modbus-RTU通信協議,RS485半雙工總線方式,傳輸距離500m(若超過可通過中繼器延長通訊傳輸距離至1200m)。
監控容量≤128點
操作分級
① 日常值班級:實時狀態監視、歷史記錄查詢。
② 監控操作級:實時狀態監視、歷史記錄查詢、探測器遠程復位。
③ 系統管理級:實時狀態監視、歷史記錄查詢、探測器遠程復位、探測器參數遠程修改、監控設備系統參數設定與修改、操作員添加與刪除。
使用環境條件
① 工作場所:消防控制室內,或與消防控制臺并列安裝
② 工作環境溫度:-10℃~+55℃
③ 工作環境相對濕度:≤95%不結露
④ 海拔高度:≤2500m
⑤ 污染等級:Ⅲ級,安裝類別:Ⅲ級
3.2、AFPM100系列儀表
3.2.1、實時監測兩路三相電壓;
3.2.2、具有過壓、欠壓、缺相、錯相、過流(僅限具有電流檢測產品)報警;
3.2.3、提供一路或兩路(僅限監控兩路三相交流電壓產品)開關量輸入功能,可監測開關狀態;(詳見模塊選型)
3.2.4、提供一路繼電器輸出,可連接報警控制回路;
3.2.5、具有事件存儲功能,報警器能夠記錄報警發生的時間、類型、參數,根據報警記錄可以分析現場情況,為消除故障提供依據;
3.2.6、采用現場總線通信技術,上位機管理軟件可以時刻監控現場的運行情況,及時發現報警信息。通過RS485接口,標準MODBUS協議可以與各種標準系統相連;
3.2.7、集成度高,網絡化,智能化程度高,動作特性合理;
4 系統功能
4.1、監控報警功能
♦ 被監控設備電源回路開關狀態
♦ 被監控設備電源的工作狀態(電壓、電流及報警狀態信息)
♦ 報警響應時間:≤100s
♦ 報警聲信號:可手動消除,當再次有報警信號輸入時,能再次啟動
♦ 報警光信號:紅色LED指示燈常亮
4.2、控制輸出功能
♦ 對個別或全部被監控設備的報警繼電器進行遠程遙控操作
♦ 監控器控制輸出:常開無源觸點,容量:AC250V 3A或DC30V 3A
4.3、故障報警功能
♦ 監控器與模塊(電壓/電流信號傳感器)之間的連接線斷路、短路
♦ 監控器主電源欠壓(≤80%主電源電壓)或過壓(≥110%主電源電壓)
♦ 監控器與其分體電源間連接線斷路、短路
♦ 當監控器出現以上故障時,能發出與監控報警信號有明顯區別的聲光故障報警信號
♦ 故障報警響應時間:≤100s
♦ 故障報警聲信號:手動消除,當再次有報警信號輸入時,能再次啟動
♦ 故障報警光信號:黃色LED指示燈常亮
♦ 故障期間,非故障回路的正常工作不受影響
4.4、自檢功能
♦ 連接檢查:通信線路及分體電源線路的斷路、短路
♦ 設備自檢:手動檢查或系統自檢
♦ 自檢耗時:≤60s
4.5、報警記錄功能
♦ 記錄10000條相關故障報警信息
♦ 報警類型:故障類型、發生時間、故障描述
♦ 報警事件查詢
♦ 報警記錄打印
4.6、打印功能
監控系統可漢字打印,可打印報警事件及時間、故障事件及時間。
4.7、消音
在發生報警或故障等警報情況下,監控設備的揚聲器會發出相應的報警聲加以提示,按“消音”鍵揚聲器終止發出警報,報警燈綠燈亮。期間工作人員可以對有關故障進行處理。一切回歸正常,報警燈滅。如有新的故障發生時,消音指示燈滅,揚聲器將再次發出警報聲。
5 結束語
靖西環球大酒店消防設備電源監控系統由消防設備電源監控裝置AFPM100/B、消防設備電源探測器組成。AFPM消防設備電源監控系統是安科瑞自主研發的集監視、報警、管理于一體的計算機測控系統,該系統可廣泛應用于智能樓宇、高層公寓、賓館、飯店、商廈、工礦企業、國家重點消防單位以及石油化工、文教衛生、金融、電信等領域。AFPM100消防設備電源狀態監控器是AFPM消防設備電源監控系統的核心,監控設備通過RS485總線與多臺傳感器相連,構成集散式消防設備電源監控系統,實時監控消防設備電源的工作狀態?仄鞑捎眉惺健⒛K化設計,配接傳感器,對所監測的消防設備電源的運行信息、故障信息、位置信息等參數進行跟蹤采集、存儲、分析,方便用戶進行管理和監控;通過人機交互界面,將消防設備電源的數據匯總顯示,具有管理、查看、報警、打印等多項功能。本設備結構合理、可靠性高、功能較強、維護方便、性價比高,系統界面直觀、易用。
參考文獻
[1].任致程 周中. 電力電測數字儀表原理與應用指南[M]. 北京. 中國電力出版社. 2007. 4
[2].周中.電力儀表在大型公共建筑電能分項計量中的應用[J].現代建筑電氣 2010. 6
作者簡介:徐霜,女,本科。任職單位:現任職于安科瑞電氣股份有限公司<
http:www.x5a5.com/news/57489.htm
