EMC的一般特性和濾波器的功能原理
電氣設備在其電磁環境中必須能正常運行并不對其環境中的任何設備產生無法忍受的電磁騷擾。這種能力被稱作電磁兼容性。我們將電磁干擾分為傳導干擾和輻射干擾。傳導干擾包括對稱和不對稱干擾(也稱作差模干擾和共模干擾)。對稱干擾在相線和中線之間流動,而不對稱干擾在相線、中線對地線之間流動。造成這些干擾的原因包括網絡交換機、變頻器、處理器、電子產品或電氣設備中的切換操作、電動機控制等。
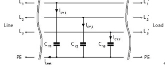
采用X電容可降低對稱干擾。就降低不對稱干擾而言,電流補償扼流圈用于低干擾頻率,Y電容用于高干擾頻率。

圖1:不對稱干擾的泄漏
這些Y電容連接于相線/中線和地線之間,并將不對稱干擾從相線/中線傳導至地線,從而產生漏電流(參見圖1)。電容越大,衰減效果越好,漏電流也就相應地越高。
可保證設備安全運行的限流值
設備或裝置的寄生耦合電容和長電源線都會導致濾波器的漏電流。它們將導致漏電流總量流經接地線,引發安全風險。接地線的電阻抗越高,使用者面臨的安全風險越大。如果一個人碰觸了具有破損接地線的設備,漏電流將流經人體到達大地(參見圖2)。

圖2:漏電流在破損接地導線中的路徑
另一方面,由于漏電流過高,任何連入建筑物網絡的剩余電流斷路器都會影響設備的可靠運行。這些剩余電流斷路器會對流入接地線的電流進行檢測,一旦電流超過一定的限流值,電源電壓就會斷開。因此,漏電流限流值能夠使設備可靠運行,并確保甚至是在接地線破損時,仍不會有人受傷。
對產品開發商的要求
設備和裝置制造商必須確保其產品滿足漏電流和電磁兼容性的相關要求。然而其目的是相互沖突的。通常情況下,可以滿足這兩種基本條件,且無需采用任何特殊措施。然而,重要的是,我們必須了解,我們涉及的是電壓領域,若濾波效果良好,高漏電流會自動生成。
濾波器漏電流規范存在的問題
另濾波器制造商會在其數據表中對漏電流加以說明。然而,IEC濾波器標準并沒有對如何執行規范做出規定。從而造成了這樣一種現狀:不同的制造商沒有義務采用相同的方法測定漏電流。因此,各制造商提供的數據沒有直接可比性。另一方面,設備標準如辦公室設備標準IEC 60950、醫療設備標準60601- 1或家用設備標準IEC 60335-1詳細規定了門限值和確定門限值應采用的方法。因此,設備和裝置制造商面臨著遵守管理其產品的標準的問題,同時不得不試圖對各濾波器制造商進行評估,并有所保留地對比制造商提供的有關漏電流的信息。可使用計算模型來測定漏電流。這些模型都基于理想化條件。這樣一來,電容和電網電壓公差就被納入考量,而寄生效應卻被忽略。然而,當與計算中使用的相對較高的公差進行對比時,理想模型中采用化簡所導致的誤差可以忽略不計。因此,電容器的電容公差規定為+/-20%,而在現實中,相關經驗顯示電容公差實際上更小。測定漏電流后,單相濾波器和三相濾波器之間必須做出區分。
單相濾波器的漏電流
就單相濾波器而言,假設中線和接地線處于同一電勢。為此,圖3中顯示的濾波器電路得以簡化,并被圖4中的替代電路所代表。

圖3:單相濾波器內的電容器網絡

圖4:測定最大漏電流的簡化電路圖
現在漏電流的測定可以更加容易:

預計出現最大漏電流的條件是電網電壓公差為+10%,電容公差為+20%,以及電網頻率為60Hz。
- 1
- 2
- 總2頁
http:www.x5a5.com/news/2015-8/2015813105643.html


