![]() |
特點與功能: 有效濾除整條零線上諧波電流 減小諧波電流帶來的電氣火災隱患 可以濾除零線上90%的諧波電流 可以減小相線電流 具有節能的效果 采用專用濾波電容,可靠性高 結構簡單,安裝方便,運行穩定 減小電磁干擾 國家專利產品 |
NBF為解決零線電流過大提供了最經濟、有效的方法。
信息化和節能降耗是現代社會的主旋律,信息設備和各種節能設備的普及帶來的一個嚴重后果就是諧波污染問題。其中3次諧波的危害尤其嚴重,會導致變壓器過熱、配電系統不穩定(頻繁跳閘)、零線電流過大、對電子設備形成電磁干擾、污染電磁環境(導致人體亞健康狀態)、增加能耗、導致零線過熱等問題。
在3次諧波導致的各種危害當中,零線過熱的問題最為嚴重。零線過熱往往是現代建筑物中的火災隱患。零線過熱導致的火災十分常見,NBF零線諧波電流阻斷器就是為了解決零線過熱問題而研制的產品。
NBF零線諧波電流阻斷器是無源器件,元器件可靠性高,運行穩定,它由創新結構構成,對3次諧波形成高阻抗,使3次諧波不在零線上流通,因此NBF能夠實現消除三相四線制負載產生的零序電流,解決零線電流過大帶來的過流過載發熱問題,減小電氣火災的隱患。
NBF使用場合為包含大量非線性負荷的建筑物場合,主要包括:
1) 寫字樓、辦公樓:大量的辦公自動化設備,電腦、打印機、復印機、UPS電源、節能燈、廣告牌;
2) 科研樓:大量的信息設備、UPS電源、科學儀器、節能燈; 3) 通信機房:大量的信息處理設備、服務器、UPS電源、通信設備;
4) 交通指揮中心:大量的信息處理設備、服務器、UPS電源、通信設備;
5) 商場:節能燈、廣告牌、大尺寸LED屏;
6) 醫院:醫療設備、UPS電源、節能燈;
7) 金融機構:大量的辦公自動化設備,信息通信設備、服務器、打印機、復印機、UPS電源、節能燈;
8) 酒店:節能燈、電腦、廣告牌
| 額定電壓(線-線)(UN) | 380V(其他電壓等級需要定制) |
| 額定電流(IN) | 10A~400A(更大電流需訂制) |
| 耐電壓 | 線-外殼3000VAC,2秒 |
| 電流過載能力 | 150%IN,1分鐘,間隔一小時 |
| 電壓降 | 小于10%UN,基波頻率為50Hz時 |
| 環境溫度范圍 | -25℃~+55℃ |
| 防護等級 | 開放式:IP00,機柜式:IP20,其他等級需要訂制 |
| 絕緣等級 | T40/F |
| 濾波效果 | 濾除零線上90%的諧波電流 |
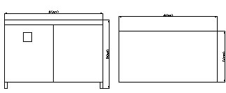
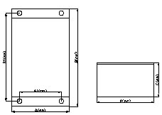
NBF結構尺寸分為兩種,小功率為壁掛結構如圖1(a),大功率為落地結構,如圖1(b)。
NBF-100及以下功率具有壁掛結構。
![]() |
![]() |
| (a)壁掛結構 | (b)落地結構 |
圖1 NBF實物圖
![]() |
![]() |
| (a)壁掛結構 | (b)落地結構 |
圖2 NBF結構尺寸
型號定義

外形尺寸
| 型號 | 外形尺寸 | 安裝尺寸 | |||
| 寬A(mm) | 厚C(mm) | 高B(mm) | 寬A1(mm) | 高B1(mm) | |
| NBF-20G | 420 | 260 | 820 | 200 | 760 |
| NBF-30G | 420 | 260 | 820 | 200 | 760 |
| NBF-40G | 420 | 260 | 820 | 200 | 760 |
| NBF-50G | 420 | 260 | 820 | 200 | 760 |
| NBF-60G | 420 | 260 | 820 | 200 | 760 |
| NBF-100G | 500 | 300 | 970 | 300 | 900 |
| NBF-30 | 450 | 320 | 850 | ---- | ---- |
| NBF-50 | 450 | 320 | 850 | ---- | ---- |
| NBF-100 | 450 | 350 | 960 | ---- | ---- |
| NBF-150 | 500 | 390 | 1100 | ---- | ---- |
| NBF-200 | 1100 | 460 | 900 | ---- | ---- |
| NBF-400 | 1200 | 460 | 930 | ---- | ---- |
NBF電路符號:![]()
NBF系統圖:
NBF連接在變壓器輸出零線上,如圖3所示。NBF連接在分配電柜上,如圖4所示。

|
圖3 NBF接在變壓器總零線上 |

|
圖4 NBF接在分配電柜零線上 |
NBF濾波器在TN-C-S,TN-S和TN –C系統的連接方式不同,分別如圖5~7所示。NBF濾波器不可以連接在PE線上。
![]()
|
圖5 TN-C-S系統NBF連接方式 |
|
圖6 TN-S系統NBF連接方式 |
|
圖7 TN-C系統NBF連接方式 |