項目名稱:伊頓愛克賽PW9315保障交通銀行總行數據中心穩定運行
引言:銀行信息大集中是近年來國有制銀行的改革重點,交通銀行正是在這樣的環境趨勢之下在上海張江銀聯基地建造了數據中心。于2005年下半年正式投入使用。交行數據中心是國家金融網絡系統的重要組成部分,是國家金融的重要基石之一,確保金融通信網絡主機、傳輸系統的365 X 24小時不間斷正常運行,不僅僅是交行全體員工的職責,也是所有設備供應商應盡的首要職責
需求背景:
用戶的負載狀況,在使用當中遇到的問題,采購UPS的原因,用于保護什么設備;交總行數據中心對于整個UPS的供電系統需要的容量為 2X1600KVA 構成交行數據中心的UPS供電系統。為總部機房中心內所有的關鍵業務的大型機、小型機服務器和核心網絡設備提供不間斷電源保障。
用戶在采購UPS時,提出的最明確的要求(如容量,可靠性,冗余性,與原來系統地連結和融合等等),凡是用戶提出的苛刻要求都進行簡單的描述;由于此次交總行數據中心是面向全國的運作的,一旦信息中斷將會給交行帶來不可估量的直接經濟損失和社會負面影響,因此對電源保障的要求是非常苛刻的,要求整個電源保障系統具有高度的冗余性,所采用的設備必須具有軍用級品質, 采用雙總線冗余UPS供電設計方案可使供電的可靠性提升到99.9999999%,也就是說一年內UPS的中斷時間不超過3.18毫秒。冗余系統間杜絕單點故障隱患,單臺機器的內部重要部件也要實現真正的冗余。
方案實施:
該部分是整個成功案例最為重要的部分,請重點準備。用戶的選擇過程,用戶的要求,對產品提出的苛刻條件,用戶的顧慮等等;考慮到電源保障系統對整個中心機房尤為重要,所以交行領導在選型時特別慎重,聘請了專家組對各投標單位產品的每個參數,進行了非常細致的考評。伊頓愛克賽POWERWARE 軍用品質的9315機器再一次在業內專家的審慎的評選中脫穎而出摘得了技術分的桂冠。伊頓愛克賽在業內的口碑、完善的服務體系和充足的備件庫也深深的打動了交行的心。――買愛克賽就是買放心。用戶選擇了Powerware 產品的型號、數量、容量等等;采用一組4臺POWERWARE 9315 400KVA組成“3+1”冗余并機共二組構成交行數據中心的UPS供電系統。9315系列400KVA UPS單機的MTBF為360,000小時,使負載供電的可靠性得到了極大的提高。
用戶選擇Powerware的原因:
Powerware的機器有哪些特殊的優勢能夠最大限度幫助客戶解決問題?主要有以下幾方面的因素:
1、PW9315機器軍用級的品質和業內口碑。單臺機器的MTBF就可達到360,000小時。
2、機器內部關鍵部位真正的冗余,保障了用戶在運行中單機的可靠性。
3、愛克賽獨有的無線并機技術,使得冗余并機系統無單點故障的隱患。
4、超大屏幕的人性化的開關機及UPS監控系統,使得日常維護簡單方便,不會有誤關機等人為誤操作事件的發生。
5、另外伊頓愛克賽公司出色的服務和充足的備件庫使得用戶即使面對突發事件也能從容應對快速解決。
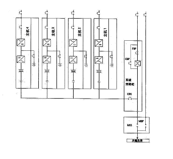
提供用戶使用設備的拓撲圖(重點)

目前使用情況描述:
針對銀行總行結算中心,我們提出了雙總線冗余UPS供電設計方案。銀行總行結算中心對信息資源(數據、語音和圖像信息)的遠程處理、存儲和轉送的“時效性”要求極高。哪怕是僅幾秒鐘的“停機”均會給整個互聯網的安全運行和用戶的生產經營帶來無法估量的損失嚴重時,甚至會造成社會和經濟生活的嚴重癱瘓。因此,必須要求提供365×24小時連續不斷的高速、安全和可靠的信息資源增值服務。采用雙總線冗余UPS供電設計方案可使供電的可靠性提升到99.9999999%,也就是說一年內UPS的中斷時間不超過3.18毫秒。
引言:銀行信息大集中是近年來國有制銀行的改革重點,交通銀行正是在這樣的環境趨勢之下在上海張江銀聯基地建造了數據中心。于2005年下半年正式投入使用。交行數據中心是國家金融網絡系統的重要組成部分,是國家金融的重要基石之一,確保金融通信網絡主機、傳輸系統的365 X 24小時不間斷正常運行,不僅僅是交行全體員工的職責,也是所有設備供應商應盡的首要職責
需求背景:
用戶的負載狀況,在使用當中遇到的問題,采購UPS的原因,用于保護什么設備;交總行數據中心對于整個UPS的供電系統需要的容量為 2X1600KVA 構成交行數據中心的UPS供電系統。為總部機房中心內所有的關鍵業務的大型機、小型機服務器和核心網絡設備提供不間斷電源保障。
用戶在采購UPS時,提出的最明確的要求(如容量,可靠性,冗余性,與原來系統地連結和融合等等),凡是用戶提出的苛刻要求都進行簡單的描述;由于此次交總行數據中心是面向全國的運作的,一旦信息中斷將會給交行帶來不可估量的直接經濟損失和社會負面影響,因此對電源保障的要求是非常苛刻的,要求整個電源保障系統具有高度的冗余性,所采用的設備必須具有軍用級品質, 采用雙總線冗余UPS供電設計方案可使供電的可靠性提升到99.9999999%,也就是說一年內UPS的中斷時間不超過3.18毫秒。冗余系統間杜絕單點故障隱患,單臺機器的內部重要部件也要實現真正的冗余。
方案實施:
該部分是整個成功案例最為重要的部分,請重點準備。用戶的選擇過程,用戶的要求,對產品提出的苛刻條件,用戶的顧慮等等;考慮到電源保障系統對整個中心機房尤為重要,所以交行領導在選型時特別慎重,聘請了專家組對各投標單位產品的每個參數,進行了非常細致的考評。伊頓愛克賽POWERWARE 軍用品質的9315機器再一次在業內專家的審慎的評選中脫穎而出摘得了技術分的桂冠。伊頓愛克賽在業內的口碑、完善的服務體系和充足的備件庫也深深的打動了交行的心。――買愛克賽就是買放心。用戶選擇了Powerware 產品的型號、數量、容量等等;采用一組4臺POWERWARE 9315 400KVA組成“3+1”冗余并機共二組構成交行數據中心的UPS供電系統。9315系列400KVA UPS單機的MTBF為360,000小時,使負載供電的可靠性得到了極大的提高。
用戶選擇Powerware的原因:
Powerware的機器有哪些特殊的優勢能夠最大限度幫助客戶解決問題?主要有以下幾方面的因素:
1、PW9315機器軍用級的品質和業內口碑。單臺機器的MTBF就可達到360,000小時。
2、機器內部關鍵部位真正的冗余,保障了用戶在運行中單機的可靠性。
3、愛克賽獨有的無線并機技術,使得冗余并機系統無單點故障的隱患。
4、超大屏幕的人性化的開關機及UPS監控系統,使得日常維護簡單方便,不會有誤關機等人為誤操作事件的發生。
5、另外伊頓愛克賽公司出色的服務和充足的備件庫使得用戶即使面對突發事件也能從容應對快速解決。
提供用戶使用設備的拓撲圖(重點)

目前使用情況描述:
針對銀行總行結算中心,我們提出了雙總線冗余UPS供電設計方案。銀行總行結算中心對信息資源(數據、語音和圖像信息)的遠程處理、存儲和轉送的“時效性”要求極高。哪怕是僅幾秒鐘的“停機”均會給整個互聯網的安全運行和用戶的生產經營帶來無法估量的損失嚴重時,甚至會造成社會和經濟生活的嚴重癱瘓。因此,必須要求提供365×24小時連續不斷的高速、安全和可靠的信息資源增值服務。采用雙總線冗余UPS供電設計方案可使供電的可靠性提升到99.9999999%,也就是說一年內UPS的中斷時間不超過3.18毫秒。
免責聲明:本文僅代表作者個人觀點,與電源在線網無關。其原創性以及文中陳述文字和內容未經本站證實,對本文以及其中全部或者部分內容、文字的真實性、完整性、及時性本站不作任何保證或承諾,請讀者僅作參考,并請自行核實相關內容。
本文鏈接:伊頓愛克賽PW9315保障交通銀行總行
http:www.x5a5.com/news/2005-12/20051212115040.html
http:www.x5a5.com/news/2005-12/20051212115040.html
