——中達電通UPS產品開發處 鄭強
項目背景
中國電信四川公司率先于中國電信集團成立客戶服務部以來,以“全客戶、全產品、全渠道、全流程、全員、全周期”的服務原則;以貫通省、市、縣的全覆蓋服務體系;以“服務創新從我做起”為主題,打造具有特色的服務文化體系……中國電信四川公司以腳踏實地的行動,踐行著“用戶至上用心服務”的理念。
為提高服務質量、提升服務形象,2010年3月份中國電信四川公司針對全省10000號核心樞紐基礎設施進行改造更新——“2010年新鴻路10000號集中座席裝修改造一期更新改造工程”。此次項目招標方對競爭廠商進行了全方位的嚴格考察,而最終臺達HIFT(海福)UPS在各項目指標評比中均有較大的優勢,成功勝出,為四川電信新鴻路10000號集中座席場地提供電源保障。
項目需求:
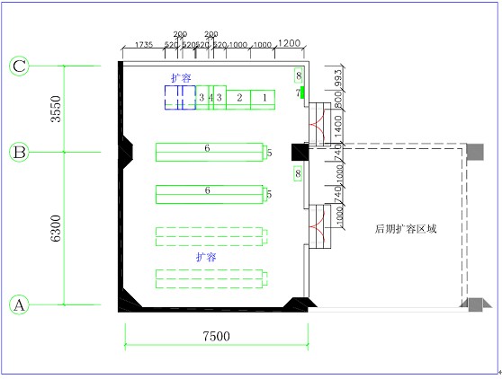
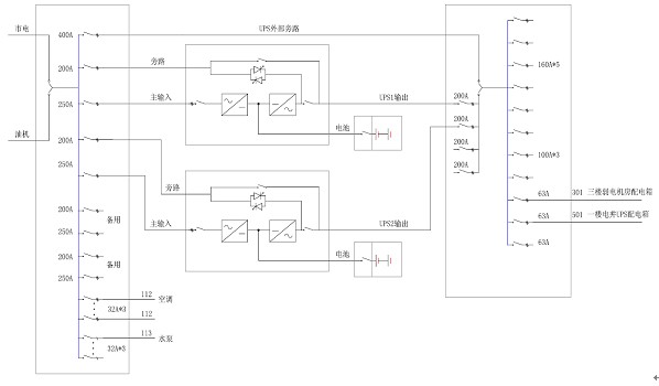
中國電信四川公司新鴻路10000號場地為四川省的核心樞紐,供電一旦出現異常或中斷將會帶來全省10000號系統的癱瘓遺以及不可估量的直接經濟損失和社會負面影響,因此對供電系統的可靠性要求極為嚴格,機房采用雙路高壓供電、1+1冗余UPS電源、大功率的柴油發電機提供可靠的后備供電能力,從而保障充足、持續的電力供應。本次項目UPS電源采用2臺100kVA 1+1并機冗余供電方式設計,UPS輸出分別向1F、3F、5F、8F 配套的10000號系統基礎設施及網絡設備負荷提供高可靠電源保障。臺達HIFT(海福)UPS電源系統的設計平面圖、系統圖 、現場安裝圖片分別如下。

圖1:電源機房設計平面圖
- 1
- 2
- 總2頁
免責聲明:本文僅代表作者個人觀點,與電源在線網無關。其原創性以及文中陳述文字和內容未經本站證實,對本文以及其中全部或者部分內容、文字的真實性、完整性、及時性本站不作任何保證或承諾,請讀者僅作參考,并請自行核實相關內容。
本文鏈接:臺達HIFT UPS在四川電信高效節能
http:www.x5a5.com/news/2010-9/201099145019.html
http:www.x5a5.com/news/2010-9/201099145019.html
文章標簽: 臺達HIFT/UPS/電源


